Dual Dwelling House in Maryborough, QLD, Australia
Lot 12, 738A Kent Street Maryborough QLD 4650
Maryborough - Marywood Estate
- 3+2 bedrooms
- 2+1 bathrooms
- 1+1 garages
Price From $816,798
Archived
Details
- ID
- BP-4188680
- Construction
- Dual Dwelling House
- Elevation
- Single Storey
- Total Floor Area
- 216.5 M2
- Contract Type
- 2-part Contract
- Pricing
- Full Turn Key
- Land Size
- 884.0 m2
- Land Price
- $245,000
- Land Reg. Date
- Registered
- Status Verified
- 21/02/2025
- Listed
- 20/11/2024
- ID
- BP-4188680
- Construction
- Dual Dwelling House
- Elevation
- Single Storey
- Total Floor Area
- 216.5 M2
- Contract Type
- 2-part Contract
- Pricing
- Full Turn Key
- Land Size
- 884.0 m2
- Land Price
- $245,000
- Land Reg. Date
- Registered
- Status Verified
- 21/02/2025
- Listed
- 20/11/2024
Est. Weekly Rental
$960/$1010
Est. Gross Yield
6.11% - 6.43%
Est. Weekly Rental
$960/$1010
Est. Gross Yield
6.11% - 6.43%
Description
Maryborough - Marywood Estate
Nestled in the picturesque Maryborough, Marywood Estate offers a serene and luxurious living experience. This estate boasts beautifully crafted homes surrounded by lush greenery and stunning views of the rolling hills and offers a variety of spacious homes, each carefully designed to offer the perfect balance of style, comfort, and functionality.
Inclusions
- Full Turnkey finish
- Fully fenced, turfed & landscaped
- 2550mm high ceilings
- Colorbond roof
- Reverse cycle/split system air-conditioner in living and main bedroom
- 20mm manufactured stone kitchen benchtop
- Approximately 1.8kw solar power system
- 600mm Stainless steel kitchen appliances
- Cold water to fridge space
- Roller blinds throughout
- Ceiling fans to bedrooms
- Undercover tiled alfresco area
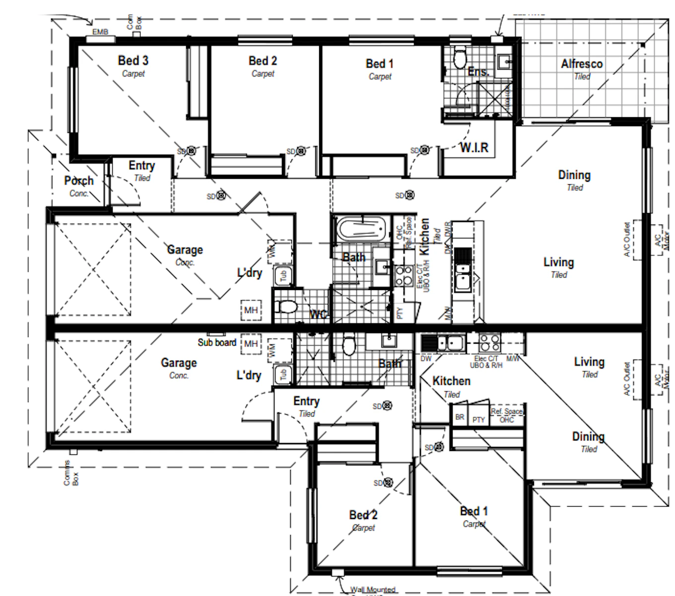
Rooms
| Area | |
|---|---|
| Primary Living | 101.1 m² |
| Primary Garage | 21 m² |
| Primary Alfresco | 11.4 m² |
| Primary Porch | 2.2 m² |
| Secondary Living | 60 m² |
| Secondary Garage | 21 m² |
Location
Disclaimer
The price does not include additional legal fees relating to the building and/or land contracts such as stamp duty, registration fees or any other charges that relate to the acquisition of the land. Packages are subject to the developer’s designs review and review by local authorities, images and floor plans are for illustration purposes and should be used as a guide only. Please refer to the builder’s plans and specifications. The non-standard façade and landscaping shown are only included in the price if stated. Furniture (if shown) is not included as part of the package. The proposed design is subject to final positioning on the site and may change to suit.
Photos